Hurtownia Hydrauliczna GRZYBINSCY

Produkt

Zbiorniki Buforowe- Galmet

Produkt

Ogrzewacze wody Zbiornik buforowy bez wężownicy

Zbiornik buforowy nieemaliowany, bez wężownicy – SG(B)

Zbiornik buforowy akumuluje ciepło wytworzone przez różne urządzenia grzewcze. Gorąca woda zgromadzona w zbiorniku wykorzystywana jest później do zasilania układu c.o.  Zbiornik buforowy bez wężownicy pozwala ograniczyć częstotliwość załączania kotła c.o., lub pompy ciepła i utrzymać stabilną temperaturę w instalacji. Pełni jednocześnie funkcję tzw. sprzęgła w instalacji i zabezpiecza układ przed przegrzaniem. Stanowi niezbędny element każdego układu centralnego ogrzewania. Przeznaczony jest do  zwiększania wydajności i trwałości układów c.o. Umożliwia jednoczesne zasilanie budynku urządzeniami, które pracują w otwartym i zamkniętym układzie zasilania. Może być zasilany z kilku źródeł ciepła jednocześnie, w tym kotła c.o., kominka lub pompy ciepła.

Sprawdzona konstrukcja

Konstrukcja zbiornika buforowego SG(B) zapewnia maksymalne wykorzystanie ciepła. Rozmieszczone na całej wysokości przyłącza hydrauliczne pozwalają zasilić instalację grzewczą różnymi temperaturami czynnika grzewczego. Zbiornik buforowy wykonany został z wytrzymałej, czarnej stali węglowej. Umożliwia to pracę bufora na ciśnieniu max. do 0.3MPa (0,6MPa, w przypadku wykonań specjalnych).

Komfortowa instalacja

Wszystkie przyłącza skupione są z jednej strony zbiornika. Upraszcza to instalację i konserwację bufora oraz jeszcze bardziej ogranicza ilość zajmowanego miejsca w kotłowni. Przy takiej konstrukcji możliwy jest montaż bufora blisko ściany. Z tej samej strony instalowany jest też czujnik temperatury oraz opcjonalne wężownice stalowe lub miedziane, cynowane (dotyczy buforów o pojemności 3000-5000 litrów). Wężownice instalowane w części górnej i dolnej znacząco skracają czas nagrzewania wody.
Zbiornik wody kotłowej (bufor) przeznaczony jest do magazynowani zdemineralizowanej wody kotłowej lub roztworu glikolu. Ich stosowanie zapewnia pracę układu z najwyższą sprawnością i wydłuża trwałość urządzenia.

Komfort instalacji i niskie koszty eksploatacji poprawia również zastosowanie w konstrukcji zbiornika buforowego SG(B) izolacji z:

„Czarne bufory” SG(B) oferowane są w obudowie z tworzywa typu folia PVC, w kolorze szarym (zbiorniki izolowane) lub bez ocieplenia (malowane farbą podkładową).

Zbiorniki skrojone na miarę

Pojemność, ilość, umiejscowienie i średnica króćców przyłączeniowych to parametry, które mogą być dobierane indywidualnie do każdej inwestycji. Zbiorniki te wykonywane są na indywidualne zamówienie inwestora po konsultacji z działem technicznym Galmet.
Trwałość „czarnych buforów” SG(B) i odporność na duże wahania temperatur sprawia, że mogą stanowić również podstawę instalacji do produkcji wody lodowej (izolacja z twardej pianki poliuretanowej).

Kompletne wyposażenie dodatkowe

W ofercie firmy Galmet, znajdują się również:

Gwarantowana jakość

Najlepsze surowce, zaawansowana technologia produkcji i prawie 40 lata doświadczenia gwarantują najwyższą jakość na każdym etapie produkcji zbiorników marki Galmet. Pozwala to zaoferować użytkownikom 60 miesięcy gwarancji**.

* Standardowy zbiornik pracuje z maksymalnym ciśnieniem 0,3 MPa. Zbiornik z maksymalnym ciśnieniem pracy 0,6 MPa dostępny jest na specjalne zamówienienie za dodatkową opłatą.
**Szczegóły w warunkach gwarancji.

Dane techniczne Jednostka SG(B) 200 SG(B) 300 SG(B) 400 SG(B) 500 SG(B) 800 SG(B) 1000 SG(B) 1500 SG(B) 2000 SG(B) 3000 SG(B) 4000 SG(B) 5000
numer katalogowy
70-200000
70-300000N
70-400000
70-500000
70-800600
70-100600
70-150600
80-200600
80-300600
80-400600
80-500600

1 – Dla typu 2000 spust wody 5/4″.

2 – Zgodnie z rozporządzeniem komisji (UE) 812/2013, 814/2013.

3 – Nieujęty w cenie podstawowej.

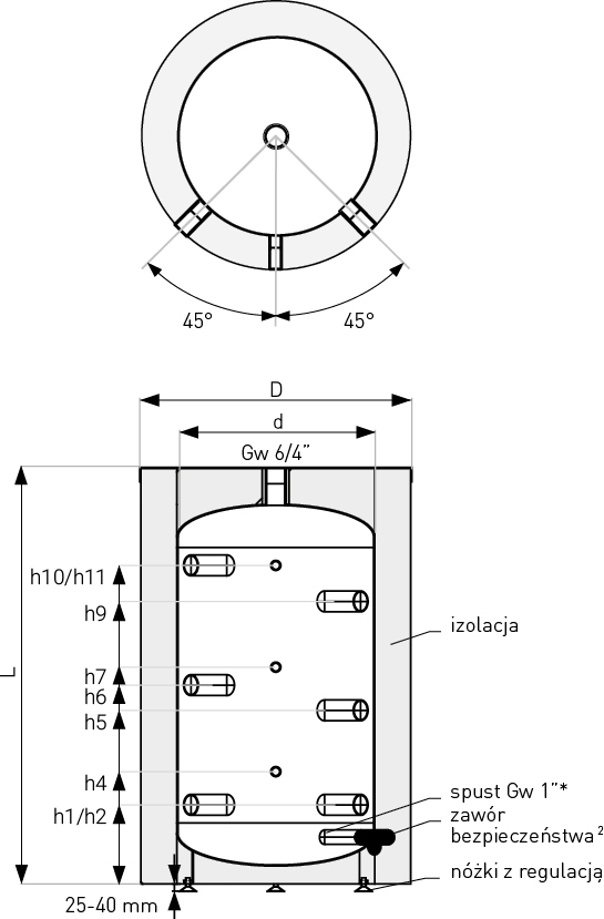
Schemat zbiornika buforowego bez wężownicy SG(B)200

Schemat zbiornika buforowego bez wężownicy SG(B)200

Schemat zbiornika buforowego bez wężownicy SG(B)200

Scroll to Top